
提升 | 懸挑腳手架施工技術發布日期:2018-09-19
案例工程采用懸挑式腳手架,其搭設技術參數如下表所示。
|
搭設高度 |
<20m |
鋼管類型 |
Ф48 × 3.0 |
|
腳手架排數 |
雙排 |
立桿橫距/m |
0.8 |
|
立桿縱距/m |
1.5 |
腳手架步距/m |
1.8 |
|
腳手板 |
鋼笆片 |
擋腳板 |
木擋腳板 |
|
連墻件 |
兩步三跨 |
連墻件連接方式 |
預埋鋼管扣件 |
|
橫向斜撐 |
6跨一設 |
卸荷次數 |
/ |
|
吊環鋼筋直徑/mm |
20 |
卸荷鋼絲繩規格 |
Φ14(6×19) |
|
鋼梁規格 |
16號工字鋼 |
錨固點設置方式 |
壓環鋼筋 |
|
錨固長度/m |
1.25Ln |
Ln懸挑長度/m |
1.25m |
|
工字鋼固定方式 |
U型鋼筋拉環 |
錨環鋼筋直徑/mm |
20 |
2 型鋼懸挑腳手架施工工藝
2.1 工藝流程
水平懸挑→縱向掃地桿→立桿→橫向掃地桿→小橫桿→大橫桿(擱柵)→剪刀撐 → 連墻件→鋪腳手板→扎防護欄桿→扎安全網。
2.2 水平懸挑梁
水平懸挑梁采用 16號工字鋼,工字鋼正常水平間距1 500mm,大部份懸挑長度1 250mm , 錨固長度1.25倍懸挑長度,固定段長度不應小于懸挑段長度的1.25倍。樓板上應預先配置用于承受懸挑梁錨固端作用引起負彎矩的受力鋼筋,否則應采取支頂卸載措施。遇懸挑件應按照懸挑件的受力支點為錨固支座,懸挑長度應以錨固支座向外計算1.25倍懸挑長度。懸挑件不得作為受力支點和穩固點。
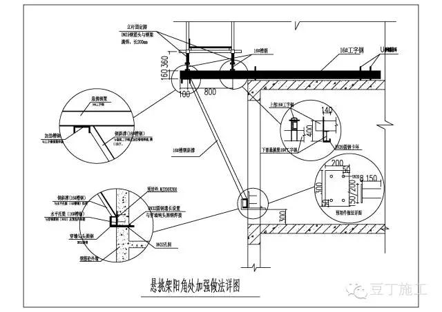
結構陽角處懸挑工字鋼交匯,無法保證伸入端長度時,在交匯處采用兩側工字鋼與陽角處工字鋼焊接,上下各增設 一200mm×200mm×10mm鋼板,所有接觸點必須滿焊,焊腳高度不得小于 8mm,且不得有氣孔、夾渣、漏焊等現象,如下圖所示。

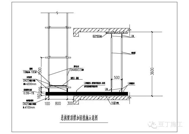
懸挑梁尾端應在2處及以上固定于鋼筋混凝土梁板結構上。型鋼懸挑梁固定端應采用2個預埋錨栓與建筑結構梁板固定,錨栓應預埋至混凝土梁、板底層鋼筋位置,并應與混凝土梁、板底層鋼筋焊接或綁扎牢固錨固,鋼筋直徑為20mm ,如下圖所示。
2.4 鋼絲繩和花籃螺栓
工字鋼懸挑端設置1道 Φ14(6×19)的斜拉鋼絲繩,鋼絲繩與建筑結構拉結的吊環采用直徑為20㎜的HPB235 級圓鋼筋。工字鋼與鋼絲繩拉結的下部應焊接防滑構件,防止鋼絲繩的滑動。其大樣圖如下圖所示。
鋼絲繩的受力卡扣應等距布設3個或以上,間距鋼絲繩直徑6倍,第4個卡扣為保險卡扣。鋼絲繩卡扣螺絲應全部擰緊,不允許松動,繩的末端應形成一個安全彎,以檢視繩受力時有無末端滑移的現象。其大樣圖如下圖所示。

花籃螺栓用來調整鋼絲繩的松緊度
2.5 基礎
根據相關規范及我司的經驗,在懸挑梁上設置立桿固定腳,采用DN25鋼筋頭與鋼梁滿焊。
2.6 立桿設置
1)立桿直接立在懸挑梁上,外端立桿距懸挑梁端不應小于100mm,挑梁懸挑端焊接200mm高直徑25mm的鋼筋,用于固定鋼管,防止方管的滑動。
2)立桿采用對接接頭連接,立桿與大橫桿采用直角扣件連接。接頭位置交錯布置,2個相鄰立桿接頭避免出現在同步同跨內,并在高度方向錯開的距離不小于50cm ;各接頭中心距主節點的距離不大于60cm 。立桿與立桿采用對接扣件連接,接頭位置距離主節點不超過1/3步距。
3)立桿的垂直偏差應控制在不大于架高的1/400。
2.7 縱向水平桿
縱向水平桿置于小橫桿之下,在立桿的內側,采用直角扣件與立桿扣緊,其長度大于三跨,同一步縱向水平桿四周交圈。腳手架立桿橫距1m寬度范圍內共設置4根縱向水平桿,兩側的縱向水平桿直接用扣件連接到立桿,中間的縱向水平桿均勻布置。縱向水平桿采用對接扣件連接,接頭交錯布置,接頭不在同步、同跨內,相鄰接頭水平距離不小于50cm,各接頭與立桿距離不大于50cm。
2.8 小橫桿
每根立桿與縱向水平桿相交連接處必須設置1根小橫桿,并采用直角扣件扣緊在立桿上,該桿軸線偏離主節點距離不大于15cm,小橫桿間距應與立桿縱距相同,根據作業層腳手板搭設的需要,在兩縱向水平桿之間等距離設置2根橫桿。小橫桿伸出外排縱向水平桿邊緣距離不小于10cm,伸出里排縱向水平桿25cm,距結構外邊緣10cm。上、下小橫桿在立桿處交錯布置,同層的相鄰小橫桿在立柱處相向布置,如下圖所示。
縱向掃地桿采用直角扣件固定在距離底座下皮200mm處的立桿上,橫向掃地桿緊靠縱向掃地桿下方用直角扣件固定在立桿上,立桿底座存在高差處,將高處縱向掃地桿向低處延長兩跨與立桿固定。
1)大橫桿置于立桿里面,每側外伸長度為150mm左右。
2)外架按立桿與大橫桿交點處設置小橫桿,兩端固定在立桿,以形成空間結構整體受力。
3)腳手架外側立面的兩端向里全立面設置剪刀撐,并應由底至頂連續設置。剪刀撐斜桿的接長宜采用搭接,搭接長度不小于1m,應采用3個旋轉扣件固定。剪刀撐斜桿應用旋轉扣件固定在與之相交的橫向水平桿的伸出端或立桿上,旋轉扣件中心線離主節點的距離不宜大于150mm。剪刀撐搭設角度為45~60度之間。
2.10 腳手板的鋪設
1)首層隔離層和施工操作層滿鋪鋼笆片腳手板,做到嚴密、牢固、鋪平、鋪穩,不得超過50mm的間隙。
2)架體上滿鋪鋼笆,鋼笆外形尺寸為1000mm×700mm,Φ6@80,鋼笆點焊必須牢靠,外涂防銹油漆。鋼笆應鋪滿、鋪設平穩,用扎絲與鋼管扣牢。
3)架體與主體結構的間距超過300mm時,每層須滿鋪鋼笆,防止物體墜落,鋪設時不得有超過50mm的間隙,同時嚴禁留有探頭長度大于150mm的探頭板。
4)鋼笆片要垂直于縱向水平桿方向鋪設,且采用對接平鋪,4個角用直徑1.2mm的鍍鋅鋼絲固定。
2.11 安全防護
1)腳手架外側使用建設主管部門認證的合格綠色密目式安全網封閉,且將安全網固定在腳手架外立桿里側。
2)選用塑料扣或尼龍繩張掛安全網,要求嚴密、平整;作業層下用安全平網嚴密防護,施工層以下每隔10m以內封閉一次。
3)腳手架外側必須設1.2m 高的防護欄桿和30cm高踢腳桿,頂排防護欄桿不少于2道,高度分別為0.6m和1.2m。
4)腳手架內側形成臨邊的(如遇大開間門窗洞等),在腳手架內側設1.2m的防護欄桿和30cm高踢腳桿。
5) 腳手架上門洞、出入口構造如下圖所示。
考慮腳手架的整體穩定性,均采用2步3跨的形式,即橫向間距不得大于3m,縱向間距不得大于3.6m,所有連墻件采用雙扣件連接。局部高支模范圍通常可以布置為三步三跨、兩步三跨以及兩步兩跨等,一般每個連墻件覆蓋面積在20~40平方米,具體應根據受力點的分布位置綜合考慮。連墻件的布置應靠近主節點設置,當該處設置有困難時,應采用其他可靠措施固定;應優先采用菱形布置,或采用方形,矩形布置。
連墻點的位置要求
在與立桿和大橫桿相交的接點處,離節點的間距不宜大于 300mm。連墻桿必須從底部第一根大橫桿處開始設置,沿整片腳手架錯開均勻布置。在腳手架周邊的端頭(包括頂端)以及轉角處,要加密連墻桿。 拉結點在轉角范圍內和頂部處加密,即在轉角lm以內范圍按垂直方向每3.0m設一拉結點。
剛性連墻桿采用如下做法
1)現澆混凝土的梁板上預埋豎向短鋼管,然后用連接短鋼管一端與預埋豎向短鋼管用直角扣件連接,另一端用直角扣件與立桿連接,并增加Φ12的鋼筋軟拉和鋼管頂件。
2) 短鋼管、扣件與鋼筋混凝土柱連接,如圖所示。
3)架體與剪力墻連接處,采用止水螺桿外套鋼管與架體連接,如下圖所示。
4)施工過程中當個別連墻桿被拆除后在相當一段時期內難于補上時,應采取在附近添設一個臨時的連墻桿,限制施工荷載或加強橫向剛度等。
每搭完一步腳手架后,按規定要求校正步距、縱距、橫距及立桿的垂直度。
2.12 外腳手架的防護
在鋪設腳手板的作業層腳手架外立桿的內側綁兩道牢固的護身欄桿和擋腳板。2道護身欄桿離腳手架的高度分別為0.6m和1.2m,緊貼外立桿內側安設2道水平鋼管。擋腳板寬度在180mm左右。架體須超過施工操作層1.5~1.8m高,中間須加防護欄桿。
架體搭設高度滿掛綠色密目式安全網;使用的密目式安全網必須是建設部認證產品。為保證密目式安全網的穩定性,在滿掛安全網時,縱橫雙向間距750mm處用塑料打包帶固定(嚴禁使用鐵絲固定安全網),使安全網固定點密集,并增強觀感。

作業層腳手板應鋪滿、鋪穩、鋪實,防止物體墜落,首層、頂層應滿鋪腳手板,以保證腳手架的頂端有足夠的橫向水平剛度。


懸挑外腳手架在底層外立桿與建筑物邊線之間范圍內全部采用模板及木枋進行封閉,并設180mm高的擋腳板,防止墜物傷人。在操作層設水平兜網,并滿鋪腳手板,水平安全網接口處必須連接嚴密。安全網必須與結構連接嚴密牢固。嚴禁使用損壞和腐朽的安全網。
當風力大于六級時,工人不得在架子上進行施工操作。
2.13.支撐體系
1)腳手架必須設置支撐體系。支撐體系包括縱向支撐(剪刀撐)、橫向支撐,這些支撐應和腳手架這一空間構架的基本構件很好聯結。
2)剪刀撐寬度不應小于4跨,且不應小于6m,架體外側全立面連續設置剪刀撐,每道剪刀撐跨越5個立桿間距,斜桿與地面傾角為45~60度。剪刀斜撐桿的接長宜采用搭接,搭接長度不小于1m,應采用不少于3個旋轉扣件固定。剪刀撐斜桿應用旋轉扣件固定在與之相交的橫向水平桿的伸出端或立桿上,旋轉扣件中心線離主節點的距離不宜大于150mm 。
縱向支撐詳圖
橫向支撐
腳手架的縱向傳力結構架構件限制不能形成封閉形。如“凹”字型的腳手架,其兩端必須設置橫向支撐。并于中間每隔六個間距加設一道橫向支撐,如圖所示。
卸荷繩布置
通過計算卸荷采用Φ14×6×19繩鋼絲繩(鋼絲1.2mm,鋼絲總斷面積128. 8mm2,單位重量121.8kg/100m,鋼繩破斷拉力總和不小于180kN),按每跨1道布置。鋼絲繩與鋼梁之間角度≥60°。
上部預埋件做法
1)采用Φ20鋼筋吊環預埋在結構梁、墻、柱等構件上,做法如下圖所示。
本方案中,腳手架架體結構在平面上存在多個轉角(陽角)處,轉達角處應采取加強措施:
1)角部懸挑部分4面應設置橫向斜撐。
2)角部懸挑部分應設置鋼絲繩兩道。
2.16 立桿不在同一高度的加強措施
1)必須將高處的縱向掃地桿向低處的架子延長兩跨與低處架子立桿固定。
2)當高低跨架子大橫桿不在同一高度時,必須將高處的大橫桿向低處的架子延長兩跨與低處架子立桿固定(僅限不在同一高度上的大橫桿)。
2.17 懸挑腳手架陽角處加強做法
2.18 懸挑梁頂撐加固措施示意圖
2.19 工字鋼與工字鋼連接示意圖
2.2 井道內架體搭設
井道內架體采用型鋼鋼管腳手架架體,腳手架每層與周邊剪力墻剛性連接,從底部至頂部連續設置剪刀撐。
懸挑外腳手架在底層外立桿與建筑物邊線之間范圍內全部采用模板及木枋進行封閉,并設 180mm 高的擋腳板,防止墜物傷人。在操作層設水平兜網,并滿鋪腳手板,水平安全網接口處必須連接嚴密。安全網必須與結構連接嚴密牢固。嚴禁使用損壞和腐朽的安全網,挑架外側滿掛密目式安全網。本工程工期緊張,需要各項工序提前插入交叉施工,如,塔樓上部結構施工時,下部則插入幕墻施工,須對腳手架全密封處理,具體處理方法及方式詳‘懸挑腳手架底部封閉處理措施’。
懸挑外架在作業層上設置鋼笆片腳手板,并設置鋼板網,防止墜物穿破安全網傷人。鋼板網設置在安全網內側,用14號鉛絲與外架鋼管間綁牢,為便于周轉使用,宜采用定型化鋼板網,鋼板網寬度采用1 500mm和1 800mm 2種規格尺寸。
4.檢查驗收
4.1 腳手架的驗收時間
1)作業層上施加荷載前。
2)每搭設完2層后。
3)達到設計高度后。
4)遇到六級大風與大雨后。
5)停用超過一個月。
4.2 外腳手架的檢查驗收
腳手架的驗收的依據
1)《建筑施工安全檢查標準JGJ59-2011 》。
2)《建筑施工扣件式鋼管腳手架安全技術規范》(JGJ130-2011 )。
3)《本工程外腳手架施工方案》。
4)有關技術交底文件。
懸挑式外腳手架驗收的內容
懸挑外腳手架在使用過程中應定期檢查下列項目:
1)桿件的設置和連接,連墻件、支撐、門洞等的構造是否符合要求。
2)扣件螺栓是否松動。
3)安全防護措施是否符合要求。
4)是否超載。
5)固定工字鋼以及拉鋼絲繩的鋼筋環是否松動、脫落。
6)鋼絲繩是否出現斷股等。
7)腳手板搭設是否滿鋪、牢固,且沒有探頭板。
8)外腳手架的技術要求與允許偏差。
腳手架技術要求及允許偏差表

外腳手架檢查項目一覽表

架子搭設和組裝完畢,使用前必須由公司負責人帶隊檢查,項目經理、技術負責人、項目安全負責人、架子班長等人員組成檢查小組參與檢查,進行驗收,并填寫驗收單。
本外架只能作圍護架和操作架使用,不允許將其作為主體結構施工模板加固和支撐架使用。轉料平臺的搭設應與外腳手架完全分離,不得利用外腳手架作為轉料平臺。在特殊情況需要在外腳手架上搭設轉料平臺時應請技術部門出書面的通知及方案。轉料平臺上料時,須輕放堆載物,并保證轉料平臺的受力均衡,不得隨意超負荷使用。
施工人員必須嚴格執行《建設工程施工安全技術操作規程》。
懸挑外架驗收表
4.4、連墻件
連墻件采用短鋼管預埋在混凝土邊梁上,根據連墻件平面圖放置,預埋完畢后在混凝土澆筑前再次檢查位置及預埋的埋入尺寸及外伸尺寸,其中外伸尺寸不得少于200mm。垂直度全高控制在20mm內,位置偏差控制在50mm內。
4.5、卸荷裝置
卸荷裝置包括吊環預埋及鋼絲繩吊拉,吊環裝置檢查項目包括布置、直徑、樓層設置的位置。鋼絲繩必須張拉緊固,檢查項目為鋼絲繩的直徑、類型,鋼絲繩直徑不得小于驗算結果的數值;連接頭螺栓的布置方法及安全彎的設置。鋼絲繩緊固采用手動葫蘆拉緊連接,鋼絲繩夾緊固后松開手動葫蘆。
來源:豆丁施工